Жакет спицами с ажурной кокеткой
РАЗМЕР: 36/38
ВАМ ПОТРЕБУЕТСЯ
- Пряжа (90% хлопка, 10% шелка; 110 м/50 г) – 550 г цвета розово-лиловой орхидеи;
- круговые спицы №3,75, 4 и 4,5 длиной по 80 см;
- 10 лиловых пуговиц.
УЗОРЫ И СХЕМЫ
ЛИЦЕВАЯ ГЛАДЬ
В лицевых рядах петли вязать лицевыми, в изнаночных – изнаночными.
ПОДГИБКА С ЗУБЧИКАМИ
Начать вязание спицами №4.
1–7-й р.: лицевая гладь,
8-й р. = ажурный узор «в дырочку»: попеременно 2 петли провязать вместе изнаночной, 1 накид.
9–16-й р.: лицевая гладь.
17-й р.: перейти на спицы № 4,5, первые 8 р. завернуть вовнутрь и провязать вместе по 1 п. наборного ряда с 1 п., лежащей на спице, лицевой.
18-й р.: вязать лицевыми.
АЖУРНЫЙ УЗОР «В ДЫРОЧКУ» С РЕЗИНКОЙ
1-й р.: * 9 лиц., 1 накид, 3 петли провязать вместе лицевой с наклоном влево (= 2 п. снять, как при лицевом вязании, 1 лиц., затем снятые петли протянуть через провязанную), 1 накид, от * постоянно повторять.
2-й р.: изнаночные петли.
В высоту постоянно повторять 1-й и 2-й р. Петли распределить по описанию в инструкции. При убавках следить за тем, чтобы на внешних раппортах число накидов и провязываемых вместе петель постоянно совпадало.
АЖУРНЫЙ УЗОР
Вязать по схеме. Петли распределить по описанию в инструкции. В ширину постоянно повторять раппорт = 12 п. между двойными стрелками. В высоту 1 раз провязать 1–38-й р.
Жакет с ажурной кокеткой
УБАВКИ ДЛЯ СКОСА РЕГЛАН
Провязать, не доходя 4 п. до метки, провязать 2 п. вместе с наклоном влево (= 1 п. снять, как при лицевом вязании, 1 лиц., затем снятую петлю протянуть через нее), провязать до 2 п. после метки, затем 2 п. провязать вместе лицевой.
ДВОЙНАЯ ПЕТЛЯ
В начале ряда (после поворота) нить проложить перед работой, спицу ввести справа в 1-ю п. и петлю снять вместе с нитью. Затем нить сильно оттянуть назад, в результате петля наденется на спицу и получится двойная петля петли. В следующем ряду двойную петлю провязать вместе согласно узору, как одну петлю – лицевой или изнаночной.
ПЛОТНОСТЬ ВЯЗАНИЯ
23 п. х 32 р. = 10 х 10 см, связано ажурным узором с резинкой спицами №4.
ВНИМАНИЕ!
Прибавляя или убавляя петли, следить за тем, чтобы число накидов и провязанных вместе петель ажурного узора на внешних раппортах всегда совпадало – за исключением 1-го р. ажурного узора после подгибки, в котором число петель увеличивается за счет дополнительных накидов, а также за исключением убавок во всех рядах круглой кокетки.
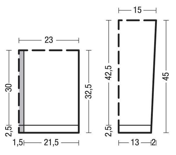
ВЫКРОЙКА
Жакет с ажурной кокеткой
ВЫПОЛНЕНИЕ РАБОТЫ
СПИНКА
На спицы №4,5 набрать 101 п. и вязать подгибку с зубчиками, при этом ряд с дырочками закончить 1 изнаночной.
Перейти на спицы №4 и следующий лицевой ряд провязать таким образом: 1 кромочная, 10 лиц., * 1 накид, 2 п. провязать вместе с наклоном влево (= 1 п. снять, как при лицевом вязании, 1 лиц., затем снятую петлю протянуть через нее), 1 накид, 9 лиц., от * повторить 6 раз, закончить: 1 накид, 2 п. провязать вместе с наклоном влево, 1 накид, 10 лиц., 1 кромочная. За счет дополнительных накидов число петель увеличивается до 109 п.
В следующем изнаночном ряду петли вязать согласно рисунку.
Для ажурного узора «в дырочку» с резинкой распределить петли таким образом: 1 кром., 1 лиц., 8 раз повторить раппорт на 12 п. между стрелками, закончить: 10 лиц., 1 кром.
Для пройм через 30 см = 96 р. от края подгибки с зубчиками с обеих сторон закрыть 1 х 5 п. = 99 п.
Оставшиеся петли временно оставить.
ЛЕВАЯ ПОЛОЧКА
На спицы №4,5 набрать 49 п. и вязать подгибку с зубчиками, при этом ряд с дырочками закончить 1 изнаночной.
Перейти на спицы №4 и следующий лицевой ряд провязать таким образом: 1 кромочная, 10 лиц., * 1 накид, 2 п. провязать вместе с наклоном влево, 1 накид, 9 лиц., от * повторить еще 2 раза, закончить: 1 накид, 2 п. провязать вместе с наклоном влево, 2 лиц., 1 кромочная. За счет дополнительных накидов число петель увеличивается до 52 п.
В следующем изнаночном ряду петли вязать согласно рисунку. Затем для ажурного узора «в дырочку» с резинкой распределить петли таким образом: 1 кромочная, 1 лиц., 3 раза повторить раппорт, закончить: 9 лиц.,1 накид, 2 п. провязать вместе лицевой, 2 лиц., 1 кромочная.
Для пройм через 30 см = 96 р. от края подгибки с зубчиками по правому краю закрыть 5 п. = 47 п.
Оставшиеся петли временно оставить.
ПРАВАЯ ПОЛОЧКА
Вязать, как левую, но в зеркальном отображении.
1-й лицевой ряд после края с зубчиками вязать следующим образом:
1 кромочная, 2 лиц., 2 п. провязать вместе с наклоном влево, 1 накид. * 9 лиц., 1 накид, 2 п. провязать вместе с наклоном влево, 1 накид, от * повторить еще 2 раза, 10 лиц., 1 кромочная.
Для ажурного узора «в дырочку» с резинкой во всех следующих лицевых рядах петли распределить следующим образом: 1 кромочная, 2 лиц., 2 п. провязать вместе с наклоном влево, 1 накид, раппорт повторить 3 раза, 10 лиц., 1 кромочная.
РУКАВА
На спицы №4,5 набрать 56 п. и вязать подгибку с зубчиками.
Затем перейти на спицы №4 и следующий лицевой ряд провязать таким образом: 1 кромочная, 4 лиц., * 1 накид, 2 п. провязать вместе с наклоном влево, 1 накид, 9 лиц., от * повторить 3 раза, закончить: 1 накид, 2 п. провязать вместе с наклоном влево, 1 накид, 4 лиц., 1 кромочная. За счет дополнительных накидов число петель увеличивается до 61 п.
В следующем изнаночном ряду петли вязать согласно рисунку. Затем для ажурного узора «в дырочку» с резинкой распределить петли следующим образом: 1 кромочная, 4 лиц., 1 накид, 3 п. провязать вместе лицевой с наклоном влево, раппорт повторить 3 раза, закончить 4 лиц., 1 кромочной. За счет дополнительных накидов число петель увеличивается до 61 п.
Для скосов рукавов с обеих сторон в каждом 20-м р. прибавить 6 х 1 п. и = 73 п., прибавленные петли вязать лицевой гладью.
Для пройм через 42,5 см = 136 р. от края подгибки с зубчиками с обеих сторон закрыть 1 х 5 п. = 63 п.
Оставшиеся петли временно оставить.
КРУГЛАЯ КОКЕТКА
На круговые спицы переснять отложенные 47 п. правой полочки, 63 п. правого рукава, 99 п. спинки, 63 п. левого рукава, 47 п. левой полочки = 319 п., петли замкнуть в круг и отметить переход между круговыми рядами.
Провязать 1 р., при этом продолжить ажурный узор с резинкой, причем кромочные двух примыкающих друг к другу деталей провязать вместе лицевой = 315 п.
Начиная с 3-го р., для швов реглан сделать 1 метку через 46 п., затем еще через 62 п., еще через 99 п. и еще через 62 п.
Затем в каждом следующем лицевом ряду выполнить 13 убавок реглан = убавить 8 п.
Теперь вязать только ажурный узор «в дырочку» с резинкой до тех пор, пока для него будет достаточно петель на спице, далее вязать лицевой гладью.
После последнего ряда с убавками на спицах останется только 211 п.
Одновременно для выреза горловины, начиная с 19-го р. от начала круглой кокетки = лицевой ряд, выполнять укороченные ряды: вязать ряд до тех пор, пока на левой спице не останется 14 п., повернуть, двойная петля, вязать ряд в обратном направлении до последних 13 п., повернуть, двойная петля. Таким образом ряды продолжать укорачивать: в обоих следующих рядах с обеих сторон оставлять не провязанными 1 х на 6 п. больше, затем 3 х на 5 п. больше.
Далее провязать 2 р. все петли, двойные петли согласно рисунку провязывать лицевой или изнаночной.
В завершение для ажурного узора петли распределить следующим образом: 5 п. перед правой двойной стрелкой, повторить 16 раз раппорт на 12 п., закончить 14 п. после левой двойной стрелки. Убавки, как показано на приведенной схеме, выполнить в 9-м р. = 194 п., в 15-м р. =177 п., в 27-м р. = 143 п., в 31-м р. = 126 п. и в 33-м р. = 109 п.
Через 38 р. выполнить подгибку с зубчиками, но петли в 16-м р. не провязывать вместе, а закрыть.
СБОРКА
Планку горловины подвернуть внутрь на половину ширины и пришить.
Для планки застежки на спицы №3,75 по левому краю полочки, включая узкий край нижнего края зубчиками и узкую сторону планки горловины, набрать 126 п. и выполнить подгибку с зубчиками, как на горловине.
Правую планку вязать в зеркальном отображении, но в 1-м лицевом ряду выполнить также 10 отверстий для пуговиц следующим образом: 1 кромочная, 7 лиц., * 2 п. снять, затем 1-ю из двух снятых петель протянуть через 2-ю, снять следующую петлю, 1-ю п. протянуть через 2-ю п. на правой спице, 1 накид, 9 лиц., от * повторить еще 9 раз, 7 лиц., 1 кромочная. В изнаночных рядах из накида вывязывать 1 лицевую и 1 лицевую скрещенную петлю.
Планки подвернуть внутрь и пришить, отверстия для пуговиц не пришивать. Выполнить боковые швы и швы рукавов. Пришить пуговицы.




