Туника с поперечной кокеткой.
Несложная в исполнении теплая туника связана из трех деталей: двух прямоугольников для нижней части и поперечной кокетки.
РАЗМЕРЫ 34/36 (38/40) 42/44
ВАМ ПОТРЕБУЕТСЯ
-Пряжа (100% шерсти; 50 м/ 100 г) – 600 (700) 800 г бирюзовой;
- спицы №10.
УЗОРЫ И СХЕМЫ
ПЛАТОЧНАЯ ВЯЗКА
Лиц. и изн. ряды – лиц. петли.
Нравится публикация? И хочется видеть почаще описание туник? Дайте нам знать! Напишите об этом в комментариях
СТРУКТУРНЫЙ УЗОР
1-й ряд (= лиц. ряд): лицевые петли.
2-й ряд: кром., * 2. лиц., 2 изн., от * повторять, закончить 2 лиц., кром.
В высоту повторять 1-й + 2-й ряды.
УЗОР ИЗ «КОС»
1-й ряд (= лиц. ряд): кром., 1 изн., * 2 п. перекрестить направо, 2 изн., от * повторить 5 раз, * 2 п. перекрестить налево, 2 изн., от * повторить 4 раза, закончить: 2 п. перекрестить налево, 1 изн., кром.
2-й ряд: кром., 1 лиц., * 2 изн., 2 лиц., от * повторять, закончить: 2 изн., 1 лиц., кром.
В высоту повторять 1-й + 2-й ряды.
2 П. ПЕРЕКРЕСТИТЬ НАПРАВО
1 п. оставить на вспомогательной спице за работой, 1 лиц., затем провязать лицевой петлю со вспомогательной спицы.
2 П. ПЕРЕКРЕСТИТЬ НАЛЕВО
1 п. оставить на вспомогательной спице перед работой, 1 лиц., затем провязать лицевой петлю со вспомогательной спицы.
ПЛОТНОСТЬ ВЯЗАНИЯ
9 п. х 13 р. = 10 х 10 см, связано структурным узором, соотв., узором из «кос».
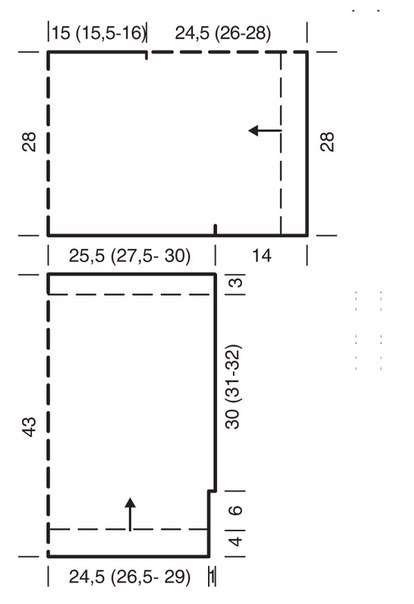
ВЫКРОЙКА
ВЫПОЛНЕНИЕ РАБОТЫ
НИЖНЯЯ ЧАСТЬ СПИНКИ
Набрать 44 (48) 52 п. и вязать 5 р. платочной вязкой, при этом начать с изн. ряда. Продолжить работу структурным узором.
Через 10 cм = 13 р. от наборного ряда в следующем лиц. ряду с обеих сторон прибавить по 1 п. = 46 (50) 54 п., прибавленные петли включить в структурный узор = после/перед кром. петли провязать лицевыми.
Через 30 (31) 32 см от прибавок провязать еще 4 р. платочной вязкой и петли закрыть.
НИЖНЯЯ ЧАСТЬ ПЕРЕДА
Вязать, как нижнюю часть спинки.
РУКАВА, ВЕРХНИЕ ЧАСТИ ПЕРЕДА И СПИНКИ
Вязать в поперечном направлении. Набрать 46 п. и выполнить 4 р. платочной вязкой, при этом начать изн. ряда. Затем 1 изн. ряд провязать лицевыми, при этом равномерно прибавить 4 п. = 50 п. Продолжить работу узором из «кос».
Через 14 см = 13 р. от начала узора из «кос» сделать с обеих сторон по метке.
Через 24,5 (26–28) см = 33 (35) 37 р. от наборного ряда петли для горловины разделить посредине и обе стороны (= по 25 п.) закончить раздельно: обе средние изн. петли =кромочные.
Через 30 (31) 32 cм от начала раздельного вязания = 38 (40) 42 р. вторую сторону закончить так же.
Затем связать на всех петлях еще 20 (22) 24 р. узором из «кос», сделать с обеих сторон по метке, выполнить еще 13 р. узором из «кос», провязать изн. ряд лицевыми, при этом 4 раза по 2 п. провязать вместе лицевыми = 46 п.
Затем выполнить еще 4 р. платочной вязкой и все петли закрыть.
СБОРКА
Детали наколоть на выкройку, увлажнить и оставить до высыхания.
Выполнить боковые швы нижней части изделия, обставив нижние участки длиной по 10 см открытыми.
Верхнюю часть изделия сложить вдоль пополам и нижнюю часть пришить к верхней, расположив
между метками. 
Выполнить швы рукавов. Концы нитей хорошо закрепить.
Конкурс для активных комментаторов в разгаре! Детали конкурса читайте тут
Новая рубрика "Наши интервью" - истории о нас! Стань ее героем прямо сейчас. Детали в Посте
Наш ресурс - источник обучающих материалов, а также - уютная компания рукодельниц! Хочется пообщаться? Милости просим в темы для обсуждения, располагающиеся внизу каждого из постов, или же сразу в тему "Обо всем и ни о чем"


 
                
             
                
             
                
             
                
            

 
                
             
                
            
